BAR-M EX8
Цена без НДС
Договорная
Распечатать
INFO
Тип машины
Трейлеры для транспортировки животных
Марка / модель
BAR-M EX8
Год выпуска
2025
Состояние
Новый
Город
North Jackson, Ohio
Страна местонахождения
Америка
Mascus ID
81E08696
ПОДРОБНОСТИ
Складской номер
43708
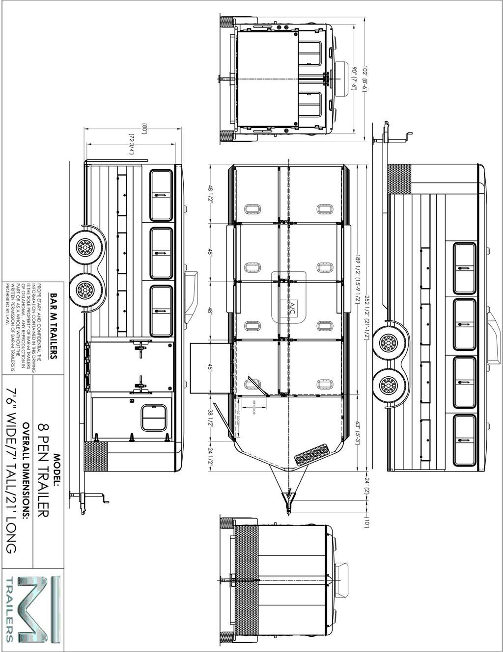
 Размеры грузового отсека (ДхШхВ) 
21 FT 0 IN
7 FT 6 IN
6 FT 0 IN м
7 FT 6 IN
6 FT 0 IN м
Прочая информация
Coupler: 2-5/16
Brakes: ELECTRIC
Rear Gate: FULL WIDTH RAMP
Axles: 5200# TORK FLEX
Leonard Truck and Trailer
12800 Leonard Parkway 44451 North Jackson Ohio Америка
Получить уведомление по электронной почте
